Center Hall Colonial Interior Redesign & Addition
ORIGINAL MAIN FLOOR: Client Needs: -Larger kitchen with an adjoining family room. - Mother-in-law suite - Expand kitchen using the basement's garage flat roof
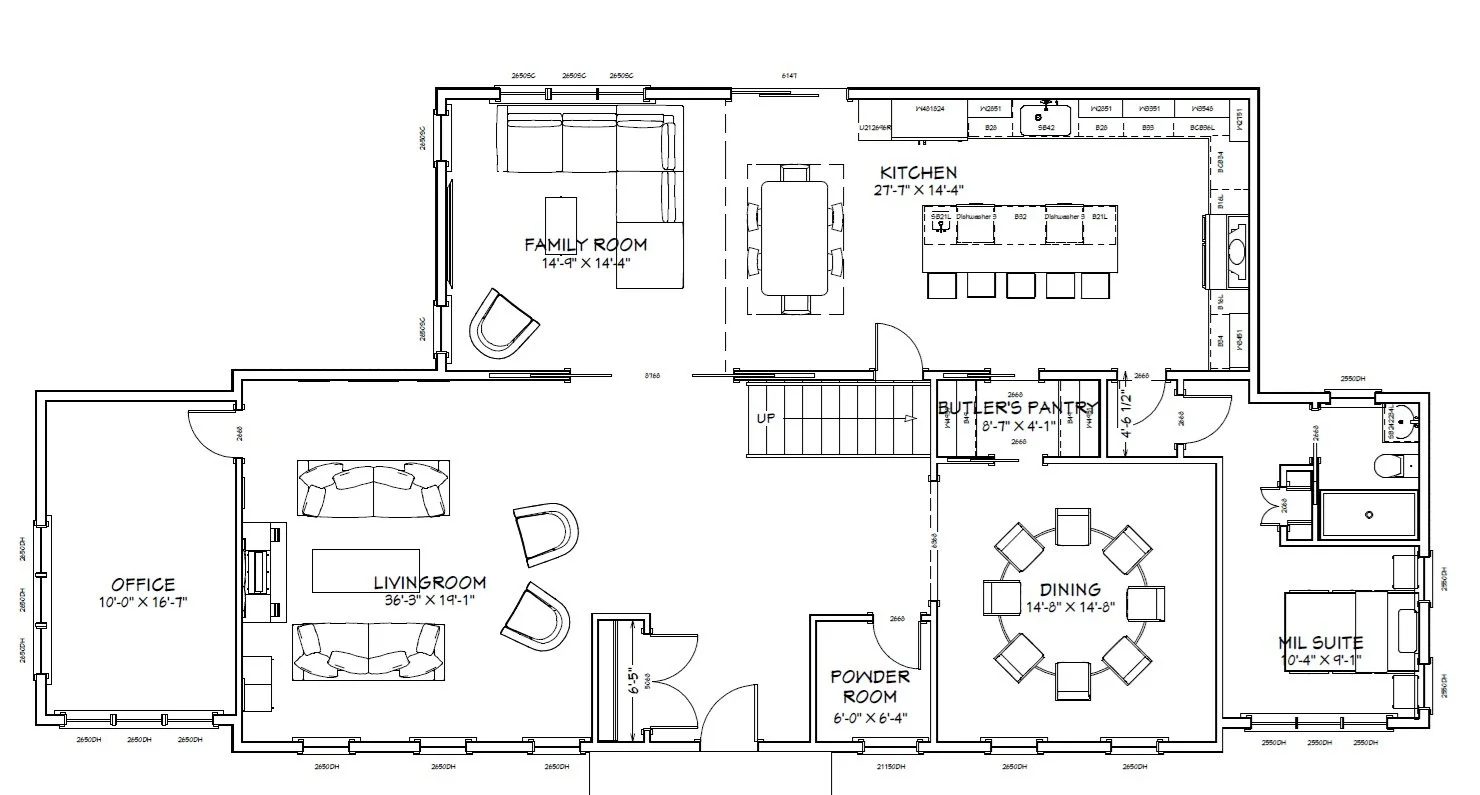
Revised first floor: The design creates an open, welcoming feel upon entry, with large pocket doors that offer both openness and privacy as needed. The kitchen now features a large island, adjoining family room, and a butler’s pantry connecting to the dining room. A compact mother-in-law ensuite was added off the kitchen.
Revised second floor: The floor plan was optimized by converting the small front bedroom into a primary walk-in closet and a new second-floor laundry. An ensuite was added to the front right bedroom, and the rear bathroom was redesigned as a Jack-and-Jill, connecting to a new back bedroom.
Original second floor: The layout lacked a proper primary bathroom and ensuite bedrooms, and the front bedroom was too small for the family’s needs.
